La propiedad indicada se encuentra Vendida

Venta Departamento 2 Ambientes 1er piso c/ascensor. A Estrenar

San Martín 149 - Lomas de Zamora - Lomas de Zamora, Lomas de Zamora, Bs.As. G.B.A. Sur

  • Departamentos
  • 1 Dormitorios
  • 2 Ambientes
  • 1 baños
  • 38.63mt²
  • USD 63.000 En Venta

Descripción

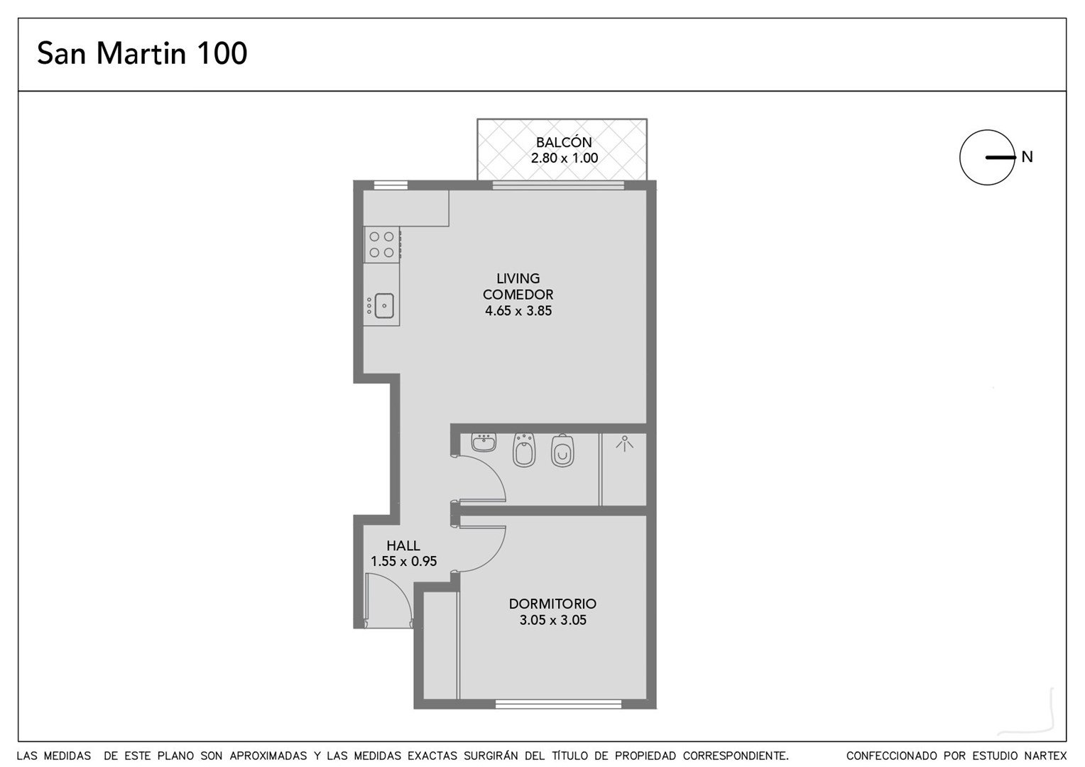
VENTA DEPARTAMENTO 2 AMBIENTES C/BALCÓN A ESTRENAR EN EDIFICIO C/ASCENSOR LOMAS El departamento ubicado en un 1° piso al frente con ascensor se haya emplazado sobre la calle San Martín 149 entre Mariano Boedo y Antonio Sáenz en Lomas de Zamora, en el Sur del Gran Buenos Aires. Al entrar a la propiedad nos recibe un hall de entrada que nos conduce al living comedor, la cocina, el dormitorio y el baño. Living comedor: Amplio, con ventana balcón al frente. Ambiente muy luminoso. Cocina: Integrada al living comedor, con ventana al exterior, mesada de granito con bacha, cocina a gas, bajo mesada y alacenas cómodas y modernas. Espacio para ubicar heladera. Termo tanque eléctrico. Conexión para lavarropas. Balcón: Con baranda y vidriado con vista hacia la calle. Baño: Moderno, completo y funcional. Con espejo, ducha y mueble de guardado. Dormitorio: Amplio y luminoso. Con ventana al contra frente y placar empotrado con interior. Se entrega con luminarias colocadas. Edificio: El edificio consta de planta baja y 2 pisos, 4 departamentos por piso, 9 unidades funcionales en total. Las expensas tienen un valor de $ 10.000 aprox. (02/2024), incluyen A.Y.S.A. y electricidad. El A.B.L. es de $ 2.500 aprox. No tiene encargado. Posee terraza en común y cochera opcional. Superficie Cubierta: 36,45 m2 aprox. Superficie Semi cubierta: 2,18 m2 aprox. Superficie Total: 38,63 m2 aprox. Barrio: El inmueble está ubicado en una zona residencial de Lomas de Zamora, emplazado sobre la calle San Martín entre Boedo y Sáenz. Muy cerca del Instituto Superior Profesorado Sáenz, la Municipalidad de Lomas de Zamora, la Plaza principal Grigera, la Catedral Basílica Nuestra Señora de la Paz, el teatro Municipal de Lomas de Zamora, el Colegio Público de Martilleros, la Escuela Primaria N° 1, la sede de la Universidad Nacional de Lomas de Zamora, del Centro Pediátrico y de la familia y de varios negocios de cercanía. Así mismo se encuentra a unas pocas cuadras del polo gastronómico Las Lomitas, la Avda. H. Yrigoyen y la estación Lomas de Zamora. Paradas cercanas de colectivo: Líneas 164, 318, 540, 542, 543, 544, 549, 550, 564, 51 entre otras. Ferrocarril: F.C.G.Roca (estación Lomas). === Si te interesa la propiedad y necesitas vender para comprar, también podemos ayudarte. === === Esta propiedad cuenta con plano digital, tour virtual 360° y video recorrido a pie. === === Los metros aquí publicados son aproximados. Los reales surgen de la escritura o plano de mensura. Accesible: No (Ley 5115). Toda la información del presente aviso, incluyendo —a título enunciativo y no limitativo— medidas, superficies, fotos, videos, renders, planos digitales, precios, mobiliario, impuestos, servicios y demás datos, es de carácter orientativo e ilustrativo, pudiendo sufrir modificaciones sin previo aviso. La misma no reviste carácter contractual ni constituye oferta vinculante, conforme lo dispuesto por el artículo 973 del Código Civil y Comercial de la Nación. Las medidas, superficies y proporciones consignadas son aproximadas y podrán diferir de las que surjan de títulos, planos y/o documentación del inmueble. La inmobiliaria no garantiza la exactitud de la información suministrada, la cual ha sido proporcionada por los propietarios y/o responsables, no asumiendo responsabilidad por eventuales errores, omisiones o inexactitudes. Se deja constancia que determinadas mejoras y/o construcciones existentes en el inmueble (tales como cerramientos, quinchos, ampliaciones y/o acondicionamientos en azoteas o terrazas) podrían no encontrarse declaradas en los títulos y/o planos. Accesible: No (Ley 5115). Asimismo, la inmobiliaria no asume responsabilidad respecto del funcionamiento de los servicios, de la valuación fiscal del inmueble, cargas, deudas, ni por la existencia de reclamos o procesos judiciales que pudieran afectar al inmueble o al consorcio de propietarios, en caso de corresponder.

Código KP438338
Categoría Departamentos
Estado Vendida
Venta USD 63.000
Dirección San Martín 149
Zona Lomas de Zamora
Barrio Lomas de Zamora
Ciudad Lomas de Zamora
Provincia Bs.As. G.B.A. Sur